板橋区仲宿 売地、限定1区画
こちらの物件は成約済みになりました。

板橋区仲宿売地、限定1区画になります。

北側約3.5m(42条2項・私道)、セットバック後は4mになります。

都営三田線「板橋区役所前」駅 徒歩9分



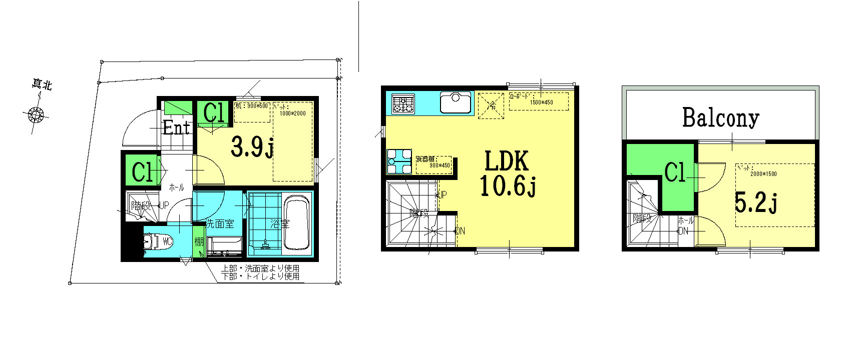
建物参考プラン

間取りのコンセプト



2階・3階の陽当たりを確保
一般的に北向きの住宅の場合、陽当たりを確保することが困難になりますが、当地の南側建物は2階建てですので、今のところ窓の位置を工夫すれば陽当たりを確保できそうです。
参考プランの断面図から冬至時の陽当たりをシミュレーションしてみます。
陽当たりを検証できるアプリを使用して、南側窓が設置される箇所において地上から約5mと約4mの2点シミュレーションしました。
先ずは地上約4mでの陽当たりになります。

下にある円弧が冬至、上の円弧は春分・秋分の日の太陽の動きになります。
地上から4m付近のシミュレーションでは、冬至時においては12時頃から13時過ぎまでしか太陽が見えません。
つづいて地上約5mでのシミュレーションです。

5m付近だと10時前から14時過ぎまで太陽が見えるため、直射日光が見込めることが分かります。

従って、2階南側の窓を地上4m付近より上に設置すれば冬至の時期でも陽当たりが望めることになります。
多くの建売住宅においては、南側にたくさん窓があっても陽当たりが悪い住宅が山のようにありますが、それは上記のようなシミュレーションを行っていないからです。
狭小地、北向きの立地でも窓の位置を工夫することにより、明るくて陽当たりのよい住宅を建てることができる場合があります。
尚、こちらのシミュレーションは自撮り棒を使用して行ったものですので、実際の高さとは異なる場合があります。
また、南側現況建物におけるものですので、将来、南側建物が建て替えや増改築された場合には、シミュレーションと同様の日射が望めなくなる可能性があります。



